Withheld
Toronto, ON


Withheld was an urban intervention proposal designed for Berczy Park during Scotiabank Nuit Blanche 2012.
The project consists of enclosing the park on all sides within a six-foot-high wall of sandbags. The intervention would effectively prevent access through and to the park for the 12 hour period, bringing into sharp focus the value we attach to our public spaces, our freedom of movement through the city, and what could be at stake with its loss.
The use of sandbags for the work alludes to the material language of war and crisis, whether a battle over the occupation of space, or as preparation for an impending ecological catastrophe. The simple sandbag wall, with its unassuming earth-filled interior, is the most elemental and effective of divisions, embodying both the potential to threaten and to reassure with its presence.
Multiple readings of the intervention also speak to the preservation of a rare green space in a dense area of the city, girding a small stand of nature against the potentially voracious forces of development.
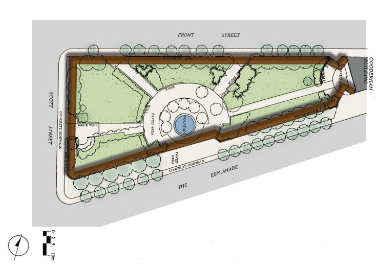
Berczy Park itself is a remarkable example of Toronto’s citizenry declaring the importance of public space and organizing themselves to create it. Named after colourful 19th century citizen William Berczy, the park is a triangular slice of land that once accommodated an ornate collection of Victorian mercantile buildings. The forces of urban renewal wiped the site clean in the 1970s, save for the Gooderham Flatiron Building, in order to make way for the St. Lawrence Centre for the Arts. The project was ultimately scaled back, leaving a desolate parking lot in its wake. A group of concerned local residents successfully lobbied the city to create a public park, and in 1980, Berczy Park was born.
Most days, Berczy Park serves as a idyllic civic oasis a stone’s throw from the country’s financial centre but in October, 2011 the park was the site of the first gathering of Toronto’s own Occupy political movement. The space served as an open air forum for strategizing of the movement’s initial activities, ultimately culminating with a residential occupancy of St. James Park one block to the north.
Toronto’s public space contains the comfort of the benign though with it, a danger of taking this freedom for granted. Public space also allows for the potential discomfort of change through the freedom of assembly and the dissemination of ideas and discourse in its most basic form, person to person.
Back to Projects
Location
Toronto, ON
Client
Scotiabank Nuit Blanche
Status
Completed 2012
Project Type
Public Art, Landscape
Role
Lead Artist
Visualization
LeuWebb Projects
Toronto, ON
Client
Scotiabank Nuit Blanche
Status
Completed 2012
Project Type
Public Art, Landscape
Role
Lead Artist
Visualization
LeuWebb Projects